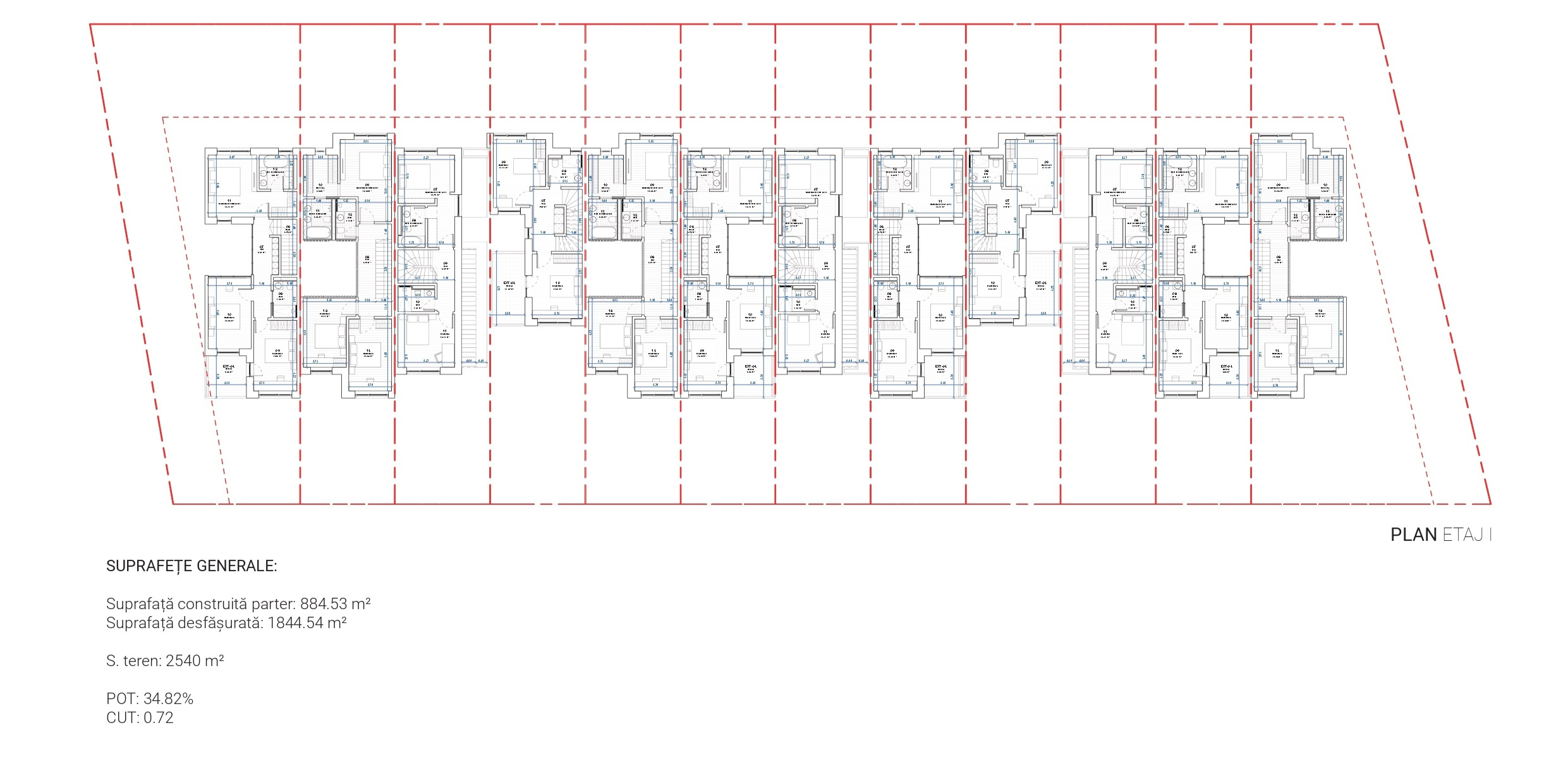
Casa tip N Vedere din fata Vedere din fata Vedere din spate Vedere din spate Vedere din spate Vedere din spate Interior Living Interior dormitor Interior bucatarie Cere oferta Contact: joy-residence@gmail.com www.prodevelopment.net www.joyretailpark.ro